LogoLogoLogoLogo
  • Services
  • Projets
  • Équipe
  • Contact
  • Services
  • Projets
  • Équipe
  • Contact

Heure bleue -11

Heure bleue -3 copie

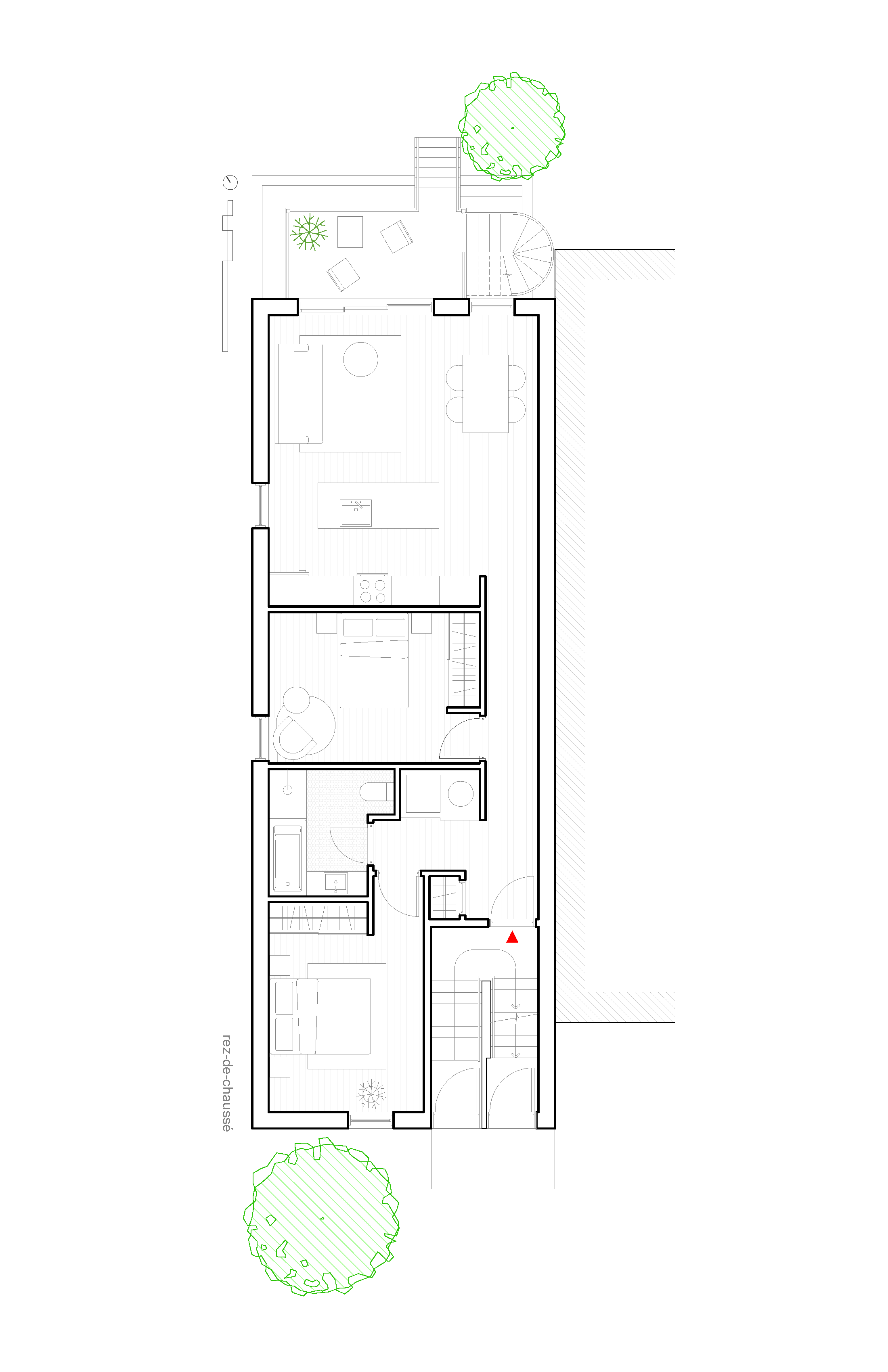
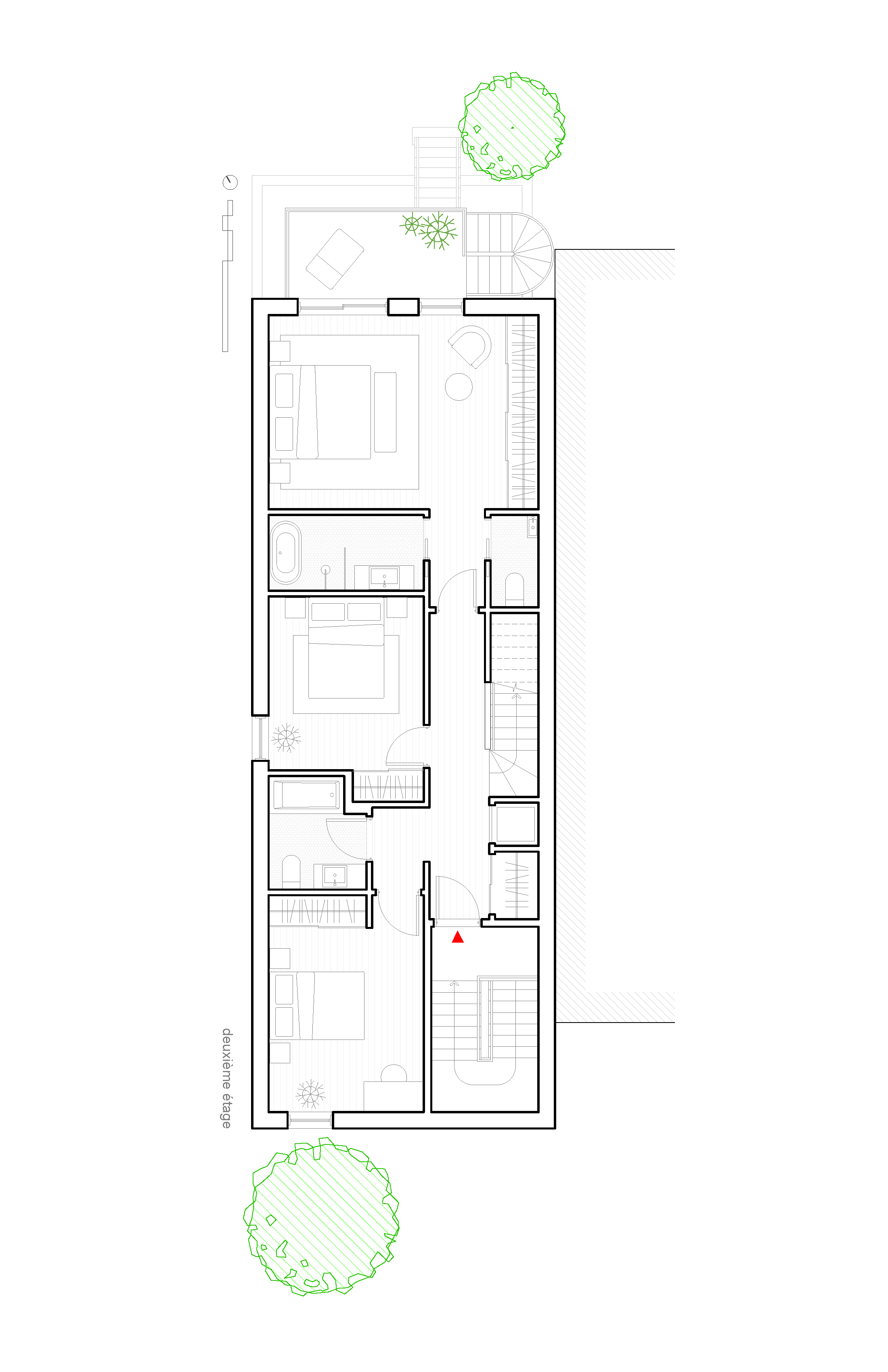
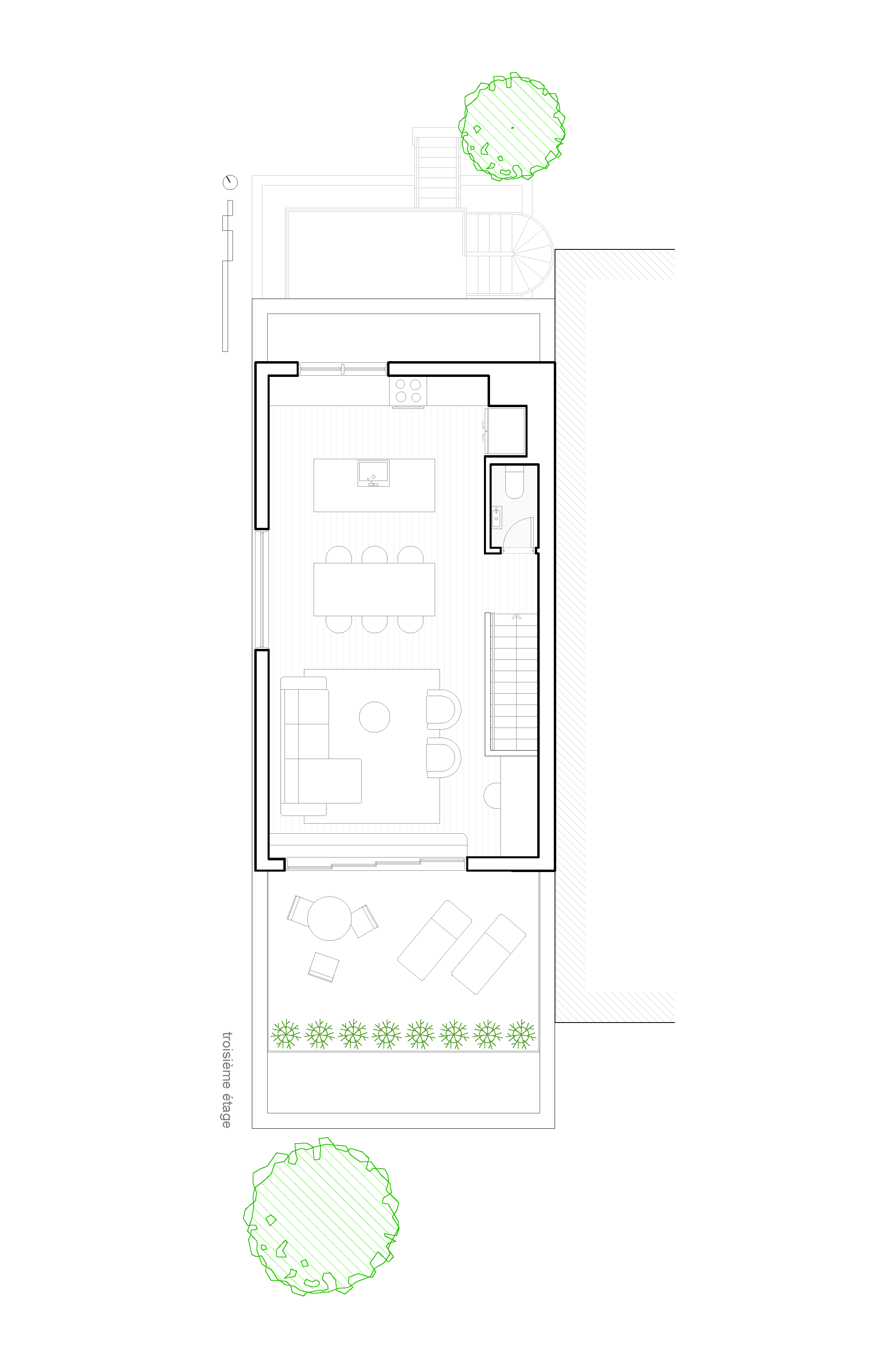
L’Heure Bleue | résidence St-André

Le projet de construction résidentielle est situé sur la rue Saint-André dans l’arrondissement Villeray. Notre proposition a comme objectif d’être sobre et originale, et de répondre à un besoin de logements de qualité. Le nouveau bâtiment est érigé sur trois étages avec une mezzanine, et il comprend trois appartements dans lesquelles l’aménagement intérieur est confortable et accueillant pour les familles. Sa forme rectangulaire est simple et efficace. À l’arrière, chacun des logements procure l’accès à un coin dédié à la détente par les balcons et terrasses. Tous bénéficient de la pleine longueur de son étage. Le revêtement de brique joue de contraste entre teintes claires et sombres et crée du dynamisme. L’appareillage aux fenêtres ajoute du relief à la brique. La composition architecturale du projet est moderne et s’enracine dans son secteur. Le bâtiment s’harmonise au style architectural hétérogène des bâtiments voisins, construits à diverses époques.

Type de projet

Design intérieur, Résidentiel

agence zarate lavigne design urbain architecture passive design interieur

Un projet en tête? Contactez-nous!

Politique de gestion des données personnelles

ⓒ 2023, Zaraté + Lavigne Architectes inc.